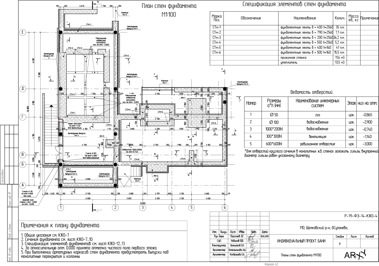
Мы строим фундамент

Отзыв Димы Билана

Зимняя беседка

Зимняя беседка

Строители капают траншею для фундамента

Вставили асбестоцементную трубу — форму для свай

Вставили 17 асбестоцементных труб

Вставили арматурный каркас внутрь трубы. Каркас сделает сваю прочной

Поставили опалубку — форму в которую уложим бетон

Уложили бетон и фундамент готов. Начали строить патио

Зимняя беседка для Димы Билана

Задача

Сделать зимнюю беседку за две недели

Описание

Дима Билан российский певец, актер и продюсер. Дима хотел построить место для отдыха, где можно пожарить шашлыки и посидеть за столом с друзьями. Мы построили Диме патио, в котором он встретит гостей.

Чтобы построить фундамент мы пробурили скважины. Мы выбрали свайно-ростверковый фундамент, который подходит для деревянных построек. Свайно-ростверковый фундамент строят в два этапа: сначала делают сваи, потом ростверк — на чем будет стоять здание. При бурении скважин для свай мы попали в плиту.

Под участком Димы проходит водопроводная труба высокого давления. Чтобы защитить трубу ее накрыли плитой. При бурении скважин бур попал в плиту и мы не сразу поняли во что воткнулись. Труба с плитой не были отмечены на плане и Дима о них ничего не знал. Мы нашли трубу случайно.

По СНИПУ положено отступить 3 метра от границы участка и 5 метров от трубы высокого давления. По плану мы хотели построить патио над трубой высокого давления, а это нарушает закон. Нам пришлось на ходу менять проект, чтобы построить фундамент.

В поселок, где живет Дима, не пустили технику. Мы не смогли завезти готовую бетонную смесь в бетономешалке. Машины не пропустили, поэтому пришлось использовать стационарную бетономешалку — она поместилась на участке. Мы привезли песок с цементом и засыпали в бетономешалку. Мы приготовили бетон в нужных пропорциях на месте, без техники.

Срок работ

С 20 июля до 4 августа 2016

Сезон

Лето

Посчитаем смету на фундамент за 3 дня

Посчитаем сколько стоят материалы, сколько стоит наша работа и срок строительства.

Пример сметы на фундамент.xls 538 КБ

Уточним детали по телефону или по почте

Строим четыре типа фундамента

Подойдет для деревянного дома до трех этажей, для кирпичного дома до двух. Для бани, сарая и бытовки. Нельзя строить подвал.

Если вы хотите построить деревянный трехэтажный дом, баню, сарай или бытовку — свайно-ростверковый фундамент вам подойдет. Свайно-ростверковый подойдет для дома из кирпича или камня, но не выше одного этажа. Для двух — трехэтажного кирпичного дома рекомендуем ленточный фундамент.

Свайно-ростверковый фундамент строят в любое время года. Срок строительства 1,5–2 месяца для фундамента 10 на 10 метров.

Отмечаем границы строительства деревянными кольями
Роем траншею, в которую уложим фундамент
Бурим отверстия, в которые вставим асбестоцементные трубы
Вставляем асбестоцементные трубы трубы. Они станут формой для свай
Вяжем арматуру и вставляем в трубы. Арматура сделает сваи прочными
Укладываем бетонную смесь в трубы
Вибрируем бетон в трубе, чтобы избавиться от пузырей воздуха. Если не убрать пузыри, то бетон треснет. Сваи готовы
Выравниваем уровень земли. Делаем подсыпку из песка, чтобы уложить фундамент параллельно земле
Стелим гидроизоляцию, чтобы вода не попала в бетон снизу
Вяжем арматурный каркас и кладем в котлован. Арматура сделает бетон прочным
Ставим опалубку. Опалубка — форма, в которую уложим бетон
Укладываем бетонную смесь
Вибрируем, чтобы не было пузырей воздуха в фундаменте. Если не убрать пузыри, то бетон треснет
Ставим теплоизоляцию по наружной стене, чтобы пол зимой не замерзал
Накрываем гидроизоляцией, чтобы защитить фундамент от влаги и арматуру от ржавчины. Фундамент готов
Инженеры «АРКСИ» помечают границы участка

Не зайдем на чужой участок

До начала строительства мы определим границы участка. Мы найдем участок по координатам из кадастровой выписки.

Кадастровая выписка — документ. Мы заказываем кадастровую выписку из Государственной службы по учету недвижимости или Росреестра. В кадастровой выписке написаны координаты участка, кто владелец и сколько стоит. Мы найдем участок по координатам из выписки.

Мы отступим от границы участка 3 метра и пометим место строительства. Ограничим место деревянными кольями, натянем веревку между кольями и пометим стороны будущего фундамента. По закону разрешено строить здание в трех метрах от границ участка. 3 метра отступим от границы участка и «красной линии»

По закону положено отступить 3 метра от границы участка и «красной линии». Под участком могут проходить водопроводные или газовые трубы. Вокруг труб, по закону, область в которой запрещено строительство. «Красная линия» — область вокруг труб с водой или газом.

Когда вы покупаете землю в поселке, то рядом с вашим участком будут соседи. Соседи ставят забор у себя на участке. Перед строительством мы проверим по кадастровой выписке где стоит забор у соседа. Если он заходит на ваш участок, то вы вправе потребовать передвинуть забор или попросить компенсацию.

Построим по проекту

Проект — инструкция по которой мы построим фундамент. С помощью проекта мы контролируем строительство и следим расходом материалов.

Мы строим по проекту, чтобы исключить человеческий фактор. Мы заранее продумаем, как строить фундамент, чтобы строители построили его без ошибок. Если строить без проекта, выше риск, что строители забудут оставить отверстие под водопровод или неправильно свяжут арматуру.

Без проекта строителям и прорабу придется придумывать на ходу как построить фундамент. В проекте мы продумаем заранее: как расположить арматуру, какой марки бетон выбрать, где будут отверстия под канализацию. Проект исключит ошибки.

Оставим отверстия под водопровод и канализацию

Мы заложим в проект водопровод, канализацию, газ, электричество, интернет и телефон.

Если не заложить сети сразу, то в будущем придется бурить отверстия в готовом фундаменте. Мы учтем сети сразу, чтобы потом не бурить отверстия и не портить фундамент.

Сделаем проект фундамента бесплатно

Если вы заключите с нами договор на строительство и сделаете предоплату за работу 10%.

Пример проекта фундамента.pdf 560 КБ

Уточним детали по телефону или по почте

Инженеры «АРКСИ» проверяют геометрию фундамента

Построим без перекосов

Мы проверим геометрию фундамента перед укладкой бетона. С помощью теодолита проверим не перекошен ли фундамент на бок, и чтобы стены были с углом 90°.

Вид сбоку. Как измеряют уклон с помощью теодолита

Проверим геометрию котлована. Пометим место строительства прежде, чем рыть котлован. Забьем колья и натянем веревку между ними. Разметим участок и сделаем углы между сторонами разметки по 90°. С разметкой мы выроем котлован прямоугольной формы. После того, как выроем котлован, колья сместятся и разметка собьется. Мы заново пометим место строительства и сделаем углы у сторон по 90°. Мы сделаем разметку, чтобы вырыть котлован ровно.

Проверим геометрию опалубки. Перед укладкой бетона мы ставим опалубку. Опалубка — форма, в которую укладывают бетон. Чтобы фундамент получился ровным, стороны опалубки должны быть под углом 90° друг к другу. Проверить углы можно двумя способами. Первый — теодолитом, второй — с помощью гипотенуз и свойств параллелограмма. Фундамент — параллелограмм. У опалубки должны быть равны противоположные стороны и диагонали в параллелограмме. Мы проверим углы опалубки, чтобы уложить фундамент ровно. 1 сантиметр — погрешность по длине. Одна сторона фундамента не будет длинее другой больше, чем на один сантиметр

Вид сверху. Как измеряют углы сторон фундамента

Перед укладкой бетона проверим арматуру. Арматура может лежать неровно: один край будет выше другого — это плохо. Когда бетон застынет нагрузка на арматуру будет неравномерная. Мы посмотрим уклон арматуры с помощью гидроуровня. Гидроуровень — пластиковая трубка с водой и пузырем воздуха. Если пузырь воздуха прибьется к краю пластиковой трубки, значит один край арматуры выше другого. Мы проверим, чтобы арматура лежала параллельно земле.

После укладки проверим бетон, пока он не застыл. Бетонная смесь ляжет неравномерно: одна часть фундамента будет выше другой. Мы сравним отметки бетонной смеси с одного края и с другого. Если увидим перепад, то доложим бетон, чтобы выровнять уровень. Если бетон застынет неравномерно, то фундамент будет перекошен на бок. Мы проверим, чтобы бетон был уложен на одном уровне.

Подберем материалы, которые подойдут друг к другу

Мы используем материалы, которые хорошо работают в паре. Производитель рекомендует какую арматуру, гидроизоляцию и утеплитель использовать, чтобы бетон был прочным. Мы подберем арматуру и гидроизоляцию по техпаспорту от производителя.

Если подобрать гидроизоляцию не по техпаспорту, она быстрее износится и пропустит влагу в бетон. От избытка влаги на фундаменте появятся трещины и он придет в негодность.

Технадзор проверяет укладку бетона для дома в Аксиньино

Проверим работу по этапам

Перед укладкой бетона мы проверим место работы. Проверим глубину, уклон траншеи, как уложена и связана арматура. Как застелена гидроизоляция. Проверяет работу заказчик или инженер из «Акрси». Результат проверки мы оформим в акт скрытых работ.

Фундамент укладывают в траншею. Глубина траншеи зависит от типа грунта и какой строим фундамент. В Москве и области траншею роют ниже глубины промерзания. После глубины промерзания неподвижный грунт, на который устанавливают фундамент. Траншея нужна, чтобы построить фундамент параллельно земле на одном уровне.

Верхние 1,5–1,8 метра грунта — подвижная часть или глубина промерзания. Когда вода замерзает и оттаивает она меняется в размере — куб льда занимает больше места, чем куб воды. Из-за изменения размера воды верхние 1,8 метра грунта подвижны: летом вода занимает один объем, а зимой другой. Изменение размера воды приводит грунт в движение. Если построить фундамент на подвижной части грунта он просядет. Грунт ниже глубины промерзания называется неподвижным, потому что вода там не замерзает. Неподвижная часть грунта стабильна. Мы установим фундамент на неподвижны грунт, чтобы он не просел. От 1,5 до 1,8 метра глубина заложения фундамента в Москве и области

Гидроизоляция фундамента бани в «Лосиноостровских усадьбах»

В траншею стелют гидроизоляцию. Гидроизоляцию стелют рулонами шириной 1 метр. Рулоны кладут друг на друга внахлест, и потом спаивают с помощью паяльной лампы. Несколько рулонов спаивают в один цельный. Грунтовые воды разрушат бетон, поэтому фундамент оборачивают гидроизоляцией. Гидроизоляция не пустит влагу внутрь фундамента.

Арматурный каркас для дома в Аксиньино

В траншее уложена арматура, она связана между собой и образует цельный каркас. Арматуру кладут поверх гидроизоляции. Арматура — железный стержень. Количество стержней арматуры и как они лежат в траншее считают в проекте — это называется шаг арматуры. Когда бетон уложат, внутри него будет каркас из арматуры. Каркас сделает бетон прочным.

После проверки арматурного каркаса инженер оформит акт скрытых работ. Акт скрытых работ — сверка проекта и того, что получилось по факту. Только после подписания акта заказчиком и инженером строители уложат бетон. Если инженер выявит дефекты, то строители исправят работу и повторно подготовят фундамент к укладке бетона. Инженер фотографирует арматурный каркас, шаг арматуры, гидроизоляцию и траншею. Фотографии — доказательство, что работа сделана по проекту. Инженер отправит фотографии заказчику вместе с актом на подпись. Акт скрытых работ.pdf 313 КБ

Отчитаемся за стройматериалы

Мы покупаем материалы без добавочной стоимости. Мы передадим вам чеки и накладные. Сравните стоимость материалов в чеке со стоимостью на сайте производителя. Покупаем материалы по ценам производителя.

Поехали с нами на стройку

Мы отвезем вас на место строительства. Вы увидите место строительства, пообщаетесь с заказчиком фундамента и директором «АРКСИ». Познакомитесь с прорабом и строителями. Поедете на машине вместе с директором от нашего офиса, около метро Кожуховская.

Уточним дату по телефону или почте

Рабочий из «АРКСИ» укладывает бетонную смесь

Равномерно уложим бетон

Мы купим бетон у производителя. Мы не замешиваем бетон на стройке, чтобы не испортить его. Когда бетон приедет с завода на него будет гарантия, что он нужной марки. Марка бетона — его прочность. Марка бетона и его свойства указаны в паспорте. Мы получим бетон с паспортом и гарантией.

Мы добавим в бетон гидрофобизирующий состав. Это порошок, который повысит долговечность бетона. Порошок уменьшит поглощение влаги из земли и вытеснит воздушные пузыри из бетона. Чем больше влаги в бетоне, тем быстрее заржавеет арматура и бетон разрушится. Пузыри воздуха в бетоне сделают его менее прочным: на месте пустот бетон треснет. Мы добавим порошок, чтобы бетон впитывал меньше влаги и прослужил дольше. 1 мешок гидро-фобизирующего состава на один куб бетона. Состав вытеснит пузыри воздуха из бетона

Для опалубки мы используем ламинированную фанеру. Опалубку ставят по краям котлована — это форма, в которую уложат бетон. Существует два вида опалубки: дерево и ламинированная фанера. После деревянной опалубки бетон придется штукатурить, чтобы заделать дыры. Когда бетон застынет, опалубку снимут и выкинут вместе с прилипшим к ней бетоном. В отличие от дерева, ламинированная фанера не отрывает куски бетона. Фанера дороже, чем доска, но ее используют при укладке стен, а не выбрасывают. Фанера многоразовая: мы подошьем ей кровлю и используем, как утеплитель.

Уплотнение бетона вибростанком

После укладки бетона его вибрируют. Бетонная смесь ляжет неравномерно: внутри появятся пустоты с воздухом. Если бетон застынет, то пустота не выдержит нагрузку. Там где пустота бетон треснет. Важно убрать пустоты и провибрировать бетон по ячейкам. Мы вибрируем бетон, чтобы он стал однородным и набрал прочность. 20 на 20 см — размер ячейки, это место пересечения арматуры. Мы провибрируем каждую ячейку, чтобы избавиться от пузырей воздуха. Это сделает бетон однородным

После укладки бетону требуется уход. Бетон должен простоять 28 суток, чтобы из него испарилась вода. После 28 суток бетон наберет необходимую прочность. Испарение влаги лучше всего идет при влажности воздуха не более 30 % и среднесуточной температуре не ниже +5. Если влага из бетона будет испаряться слишком быстро, он треснет.

Чтобы бетон не треснул, мы поливаем его 1–3 раза в сутки, в зависимости от температуры воздуха. Мы контролируем испарение влаги из бетона, чтобы вода испарялась равномерно. Если влага будет испаряться слишком медленно, тогда бетон не наберет прочность. Мы построим вокруг бетона парник, в котором будем поддерживать постоянную температуру с помощью обогревателя. Мы ухаживаем за бетоном, пока он не затвердеет.

Через пять суток можно строить стены

Через пять суток бетон наберет 30% прочности. Этого достаточно, чтобы начать возводить стены.

Как только начнем возводить стены, застелем бетон гидроизоляцией. Накроем бетон сверху. Когда мы застелим гидроизоляцию поверху, бетон станет водонепроницаем со всех сторон. Гидроизоляция не пропустит в бетон воду и не даст ему разрушиться.

Работаем в команде

«АРКСИ» — строительная компания и архитектурное бюро. Мы построим фундамент, дачу, магазин, склад и торговый центр. Создадим дизайн интерьера квартиры и загородного дома.

10 лет строим дома и проектируем интерьер

Работаем с компаниями и частными заказчиками. Мы построили нефтеперерабатывающую вышку для «Газпрома». Работали с российскими звездами: Димой Биланом, Полиной Гагариной, Владимиром Этушем и Николаем Дроздовым. Работали с «Метро», «Коалко», «Адидасом», «Рокпортом» и «Рибоком». Отзывы заказчиков и примеры работ на сайте «Аркси».

У нас в команде инженеры по вентиляции, кондиционированию, сантехнике, канализации и водопроводу. Инженеры по слаботочным системам и электрике. Конструкторы, дизайнеры, архитекторы и четыре бригады строителей. Мы не нанимаем посторонних людей, поэтому не срываем сроки и выполняем обещания.

  • Офис в Москве
    Ул. Южнопортовая, дом 5, строение 1. Бизнес-центр «Золотое кольцо». Метро Кожуховская.
  • Портфолио и отзывы
    Arxy.ru

Приезжайте в гости

Расскажите о своей задаче нашим инженерам и строителям. Обсудите с директором условия работы.

Уточним время и дату встречи

Работаем по договору

Договор.doc 291 КБ

«Заказчик», действующий как физическое лицо от собственного имени и в своем интересе с одной стороны, и Общество с ограниченной ответственностью «АРКСИ», именуемое в дальнейшем «Подрядчик», в лице Генерального директора Прасолова Дмитрия Геннадьевича, действующего на основании Устава с другой стороны, вместе именуемые «Стороны», а индивидуально — «Сторона», заключили настоящий договор подряда (далее по тексту — Договор) о нижеследующем:

1. Предмет договора

  • 1.1. По настоящему Договору Подрядчик обязуется по заданию Заказчика в установленный Договором срок выполнить строительство фундамента дома, расположенного по адресу в соответствии с разработанной ранее Подрядчиком проектной документацией РД-00-ФЗ-1X, являющейся неотъемлемой частью настоящего Договора, (далее по тексту Работы) по адресу, а Заказчик обязуется принять результат Работ и оплатить обусловленную Договором цену. # Обещаем построить фундамент в срок
  • 1.2. Работы выполняются поэтапно. Вид работ, объем, список необходимых материалов, стоимость материалов и работ согласована в рамках настоящего Договора, является фиксированной и не подлежит изменению. # Мы не будем увеличивать стоимость строительных материалов и строительства. На сколько согласились столько и будет стоить
  • 1.3 Список необходимых материалов, стоимость материалов по строительным работам указываются в Приложении № 2 к настоящему Договору. #
  • 1.4. Оборудование, необходимое для выполнения Работ, предоставляется Подрядчиком. Подрядчик несет ответственность за ненадлежащее качество предоставленного им оборудования, сроки его предоставления, а также за предоставление оборудования, обремененного правами третьих лиц. #

2. Срок действия договора

  • 2.1. Договор вступает в силу с момента его подписания и действует до полного исполнения Сторонами своих обязательств. #

3. Права и обязанности сторон

  • 3.1. Заказчик обязуется: #
  • 3.1.1. Осмотреть и принять с участием Подрядчика выполненные этапы Работы. #
  • 3.1.2. Оплатить выполненные Работы на условиях и в порядке, установленных Договором. #
  • 3.1.3. Своевременно вносить предоплату за строительные материалы, необходимые для производства работ. #
  • 3.1.4. Предоставить доступ к объекту к дате, указанной в Договоре, как начало выполнения работ. #
  • 3.2. Подрядчик обязуется: #
  • 3.2.1. Осуществлять Работы в соответствии с условиями Договора. #
  • 3.2.2. Предоставить в соответствии с условиями Договора необходимые материалы и оборудование. #
  • 3.2.3. Немедленно предупредить Заказчика и до получения его указаний приостановить Работы при обнаружении: непригодности или недоброкачественности предоставленного Заказчиком материала; возможных неблагоприятных для Заказчика последствий выполнения его указаний о способе выполнения Работ; отрицательного результата или нецелесообразности дальнейшего проведения Работ; необходимости проведения дополнительных работ, обнаружившихся в ходе работ, не учтенных в технической документации;

    — иных, не зависящих от Подрядчика обстоятельств, которые грозят годности или прочности результатов выполняемых Работ либо создают невозможность их завершения в срок. Вопрос о целесообразности продолжения Работ решается Сторонами в течение пяти рабочих дней со дня получения Заказчиком уведомления о приостановлении Работ. #

    Если что-то пойдет не так, мы вас предупредим. Вместе решим, что делать дальше
  • 3.2.4. В течение одного рабочего дня, с момента окончания выполнения этапов Работ, проинформировать Заказчика о готовности результата этапа Работ. #
  • 3.2.5. Выполнить все Работы в объеме и в сроки, предусмотренные Договором и Приложением к нему, и сдать Работы Заказчику в состоянии, позволяющем нормальную эксплуатацию результата Работ. #
  • 3.2.6. Своевременно, в согласованные с Заказчиком сроки, устранять недостатки и дефекты, выявленные при приемке Работ. #
  • 3.2.7. Использовать в соответствие с условиями Договора необходимые материалы и оборудование (технику). #
  • 3.2.8. Убрать за собой строительный мусор. # Уберем за собой строительный мусор
  • 3.3. Заказчик вправе: #
  • 3.3.1. В любое время проверять ход и качество Работ, не вмешиваясь в деятельность Подрядчика. #
  • 3.3.2. Назначить Подрядчику разумный срок для устранения недостатков и при неисполнении Подрядчиком в назначенный срок этого требования отказаться от Договора либо устранить недостатки своими силами или поручить устранение недостатков третьему лицу с отнесением расходов на Подрядчика, а также потребовать возмещения убытков, если во время выполнения Работ станет очевидным, что она не будет выполнена надлежащим образом. #
  • 3.3.3. По своему выбору в случаях, когда Работы выполнены Подрядчиком с отступлениями от Договора, ухудшившими результат Работ, или с иными недостатками, которые делают его не пригодным для предусмотренного в Договоре использования либо непригодным для обычного использования:

    — Потребовать от Подрядчика безвозмездного устранения недостатков в разумный срок;

    — Потребовать от Подрядчика соразмерного уменьшения установленной за Работы цены;

    — Устранить недостатки своими силами или привлечь для их устранения третье лицо с отнесением расходов на устранение недостатков на Подрядчика. #

    Вы вправе потребовать, чтобы мы исправили брак бесплатно
  • 3.3.4. Если отступления в Работах от условий Договора или иные недостатки результата Работ в установленный Заказчиком разумный срок не были устранены, либо являются существенными и неустранимыми, отказаться от исполнения Договора и потребовать возмещения причиненных убытков. #
  • 3.4. Подрядчик вправе: #
  • 3.4.1. Привлекать к исполнению своих обязательств по Договору субподрядчиков, после предварительного согласования с Заказчиком. Без согласования с Заказчиком субподрядчики привлекаться к работам не могут. #
  • 3.4.2. Не приступать к Работам, а начатые Работы приостановить или отказаться от исполнения Договора и потребовать возмещения убытков в случаях, когда нарушение Заказчиком своих обязанностей по Договору препятствует исполнению Договора Подрядчиком, а также при наличии обстоятельств, очевидно свидетельствующих о том, что исполнение Заказчиком указанных обязанностей не будет произведено в установленный срок. #
  • 3.4.3. Требовать оплаты выполненных им этапов Работ, в том числе в случае, если результат Работ не был достигнут либо достигнутый результат оказался с недостатками, которые делают его не пригодным для предусмотренного в Договоре использования, по причинам, вызванным недостатками предоставленного Заказчиком материала. # Доверьте нам покупку строительных материалов. Мы несем ответственность за качество строительных материалов и если материалы станут причиной порчи фундамента
  • 3.4.4. Вместо устранения недостатков, за которые отвечает Подрядчик, безвозмездно выполнить Работы заново. В этом случае Заказчик обязан возвратить ранее переданный ему результат Работ Подрядчику, если по характеру Работ такой возврат возможен. #
  • 3.4.5. При уклонении Заказчика от принятия выполненных Работ по истечении двух недель, когда согласно Договору или Приложениям к нему, результат Работ должен был быть передан Заказчику, и при условии последующего двукратного предупреждения Заказчика, Работы считаются принятыми и подлежат оплате в полном объеме. #

4. Сроки выполнения работ

  • 4.1. Сроки выполнения Работ по настоящему Договору: начало выполнения работ 1 марта 2017 года. Окончание работ 1 мая 2017 года. #
  • 4.2. Течение установленных настоящим Договором сроков начала и окончания Работ (а равно устранения выявленных недостатков выполненных Работ) приостанавливается и переносится Подрядчиком в одностороннем порядке:

    — на период просрочки исполнения Заказчиком встречных обязательств, предусмотренных Договором.

    — в иных независимых от Подрядчика обстоятельствах (в т.ч. отсутствие необходимых материалов и т.д.), которые могут препятствовать эффективному и безопасному использованию результата Работ, либо создают невозможность завершения выполнения работ в установленные сроки.

    Об увеличении сроков выполнения Работ Подрядчик извещает Заказчика письменно. В случае несогласия с приостановлением сроков Заказчик вправе отказаться от дальнейшего проведения Работ. При этом Заказчик обязан принять и оплатить фактически выполненные работы, приобретенные и неиспользованные материалы подрядчика. #

5. Стоимость работ

  • 5.1. Сметная стоимость Работ по настоящему Договору является фиксированной определяется согласно сметных расчетов Подрядчика (Приложение № 1к Договору подряда № 00), что составляет X рублей 00 коп., и является фиксированной ценой. # Цена не изменится после заключения договора
  • 5.1.1. Сметная стоимость Материалов по настоящему Договору определяется согласно сметных расчетов Подрядчика (Приложение № 2 к Договору подряда № 1), что составляет X рублей 00 коп, и является фиксированной. #
  • 5.2. Оплата дополнительных работ, не предусмотренных Договором и сметными расчетами Подрядчика, производится сверх установленной в п. 5.1. Договора цены в порядке письменного согласования с Заказчиком. #

6. Платежи и расчеты

  • 6.1. Оплата Работ и материалов по настоящему Договору производятся поэтапно. #
  • 6.1.1 Заказчик в течение 2 (двух) банковских дней с даты подписания Договора подряда № 00, Приложения № 1, вносит в кассу или перечисляет на расчетный счет Подрядчику авансовый платеж в размере 50 % от стоимости строительных работ и 100% за материалы, определяемой двумя сторонами от предварительной сметной стоимости работ, указанной в сметном расчете (Приложение № 1), что составляет X рублей 00 коп. Итого авансовый платеж по настоящему Договору составляет X рублей 00 коп. #
  • 6.1.2 Заказчик производит оплату работ по факту выполнения всех или части работ. Основанием для окончательного платежа является представленный Подрядчиком Акт о приемке выполненных работ по форме КС-2, в котором отражена стоимость фактически выполненных объемов работ. Оплата производится в течение 2 (двух) банковских дней с момента представления указанного Акта Заказчику. Объем работ, составляющих тот или иной этап работ, определяется Подрядчиком самостоятельно. # Вы оплатите работу по факту. Мы уложили фундамент, вы приняли работу и после этого оплатили
  • 6.1.3 Оплата по Договору осуществляется путем перечисления Заказчиком денежных средств на расчетный счет Подрядчика или путем внесения наличных денежных средств в кассу Подрядчика. #

7. Порядок сдачи и приемки работ

  • 7.1. Приемка конечного результата Работ подтверждается подписанием Сторонами актов приемке выполненных работ, которые оформляются в следующем порядке: #
  • 7.1.1. Подрядчик по завершении выполнения Работ в сроки, установленные приложениях к договору и п. 4.1 Договора представляет Заказчику Акт о приемке выполненных работ в двух экземплярах, оформленные по унифицированной форме КС-2. # Вы имеете право не подписывать акт если считаете, что работа сделана плохо
  • 7.1.2. Договор считается полностью выполненным после подписания Сторонами окончательного акта о приемке всех выполненных работ. #
  • 7.1.3. Заказчик обязан в течение пяти рабочих дней со дня получения документов, указанных в п. 7.1.1 Договора, с участием Подрядчика осмотреть, и принять выполненные Работы подписать, и вернуть Подрядчику один экземпляр Акта о приемке выполненных работ или направить Подрядчику мотивированный отказ от приемки Работ путем направления его по почте либо нарочно. По истечении указанного срока, при отсутствии мотивированного отказа Заказчика, Работы считаются принятыми Заказчиком и подлежащими оплате на основании одностороннего Акта, составленного Подрядчиком. #
  • 7.1.4. В случае отказа Заказчика от приемки этапа Работ Сторонами в течение пяти рабочих дней со дня получения Подрядчиком мотивированного отказа составляется двусторонний Акт с перечнем необходимых доработок и сроков их выполнения, в случае признания такого отказа обоснованным. #
  • 7.1.5. Заказчик, обнаруживший недостатки в Работах при их приемке, вправе ссылаться на них в случаях, если в Акте сдачи-приемки выполненных работ либо в ином документе, удостоверяющем приемку, были оговорены эти недостатки, либо возможность последующего предъявления требования об их устранении. # Если вы найдете недостатки, то мы их исправим
  • 7.1.6. Заказчик, принявший Работы (этап Работ) без проверки, лишается права ссылаться на недостатки Работ, которые могли быть установлены при обычном способе их приемки (явные недостатки). #
  • 7.1.7. Заказчик, обнаружив после приемки Работ отступления в них от условий Договора или иные недостатки, которые не могли быть установлены им при обычном способе приемки (скрытые недостатки), в том числе такие, которые были умышленно скрыты Подрядчиком, обязан известить об этом Подрядчика в течение двух рабочих дней со дня их обнаружения. #
  • 7.1.8.Скрытые Работы принимаются Заказчиком на основании акта скрытых работ и составления актов освидетельствования этих работ. Подрядчик в письменном виде заблаговременно уведомляет Заказчика о необходимости проведения промежуточной приемки выполненных скрытых работ, но не позднее, чем за 3 календарных дня до начала проведения этой приемки. Если Заказчик не явится к указанному сроку проведения промежуточной приемки выполненных скрытых работ, то Подрядчик составляет односторонний акт и считает работы принятыми, при этом ответственность за качество выполненных работ с Подрядчика не снимается. Вскрытие работ в этом случае по требованию Заказчика производится за счет Заказчика. # Мы не уложим бетон, без вашего разрешения. Мы уложим бетон после того, как вы подпишите акт и проверите работу
  • 7.1.9. При досрочном прекращении Работ по Договору за исключением случаев, предусмотренных п.п. 3.3.2, 3.3.3, 7.1.4 Договора, Заказчик обязан принять выполненные Работы по степени их готовности на дату прекращения Работ и оплатить их стоимость (за вычетом предоплаты). #
  • 7.1.10. При досрочном выполнении Подрядчиком Работ Заказчик обязан принять и оплатить эти Работы на условиях Договора. #

8. Гарантия качества работ

  • 8.1. Гарантия качества распространяется на все Работы, выполненные Подрядчиком по Договору. #
  • 8.2. Гарантийный срок Работ устанавливается на 10 лет с даты подписания Сторонами конечного акта сдачи-приемки выполненных Работ. # Мы гарантируем, что фундамент не треснет и не просядет
  • 8.3. Течение гарантийного срока прерывается на все время, на протяжении которого объект Работ не мог эксплуатироваться вследствие недостатков, за которые отвечает Подрядчик. #
  • 8.4. Если в период гарантийной эксплуатации объекта Работ обнаружатся дефекты, препятствующие нормальной его эксплуатации, за которые отвечает Подрядчик, то Подрядчик обязан их устранить за свой счет и в согласованные с Заказчиком сроки. Для участия в составлении акта, фиксирующего дефекты, согласования порядка и сроков их устранения Подрядчик обязан направить своего представителя не позднее 14 рабочих дней со дня получения письменного извещения Заказчика. Гарантийный срок в этом случае продлевается, соответственно, на период устранения дефектов. # Мы дадим гарантию на фундамент. Гарантия начнет действовать, как только вы подпишите акт
  • 8.5. Подрядчик несет ответственность за недостатки (дефекты), обнаруженные в пределах гарантийного срока, если не докажет, что они произошли вследствие нормального износа объекта Работ или его частей, неправильной его эксплуатации или неправильности инструкций по его эксплуатации, разработанных самим Заказчиком или привлеченными им третьими лицами, ненадлежащего ремонта объекта Работ, произведенного самим Заказчиком или привлеченными им третьими лицами. #

9. Ответственность сторон

  • 9.1. Стороны несут ответственность за неисполнение или ненадлежащее исполнение своих обязательств по Договору в соответствии с Договором и законодательством России. #
  • 9.2. Неустойка по Договору выплачивается только на основании обоснованного письменного требования Сторон. #
  • 9.3. Ответственность Заказчика: #
  • 9.3.1. В случае несвоевременной оплаты Работ Подрядчику в соответствии с условиями Договора Заказчик обязуется выплатить Подрядчику пени в размере 0,05% от суммы задолженности за каждый календарный день просрочки платежа. Заказчик освобождается от уплаты неустойки, если докажет, что просрочка исполнения указанного обязательства произошла вследствие непреодолимой силы или по вине Подрядчика. #
  • 9.4. Ответственность Подрядчика: #
  • 9.4.1. В случае несвоевременного выполнения Работ Подрядчик обязуется выплатить Заказчику пени за каждый день просрочки в размере 0,05% в день от стоимости этапа Работ по Договору за каждый день просрочки, но не более 10% от общей суммы Работ. При этом Подрядчик освобождается от уплаты неустойки, если докажет, что просрочка исполнения указанного обязательства произошла вследствие непреодолимой силы или по вине Заказчика. # Мы построим фундамент в срок. За каждый день просрочки мы платим вам 0.05 % от стоимости работ
  • 9.4.2. Подрядчик несет ответственность за сохранность предоставленных Заказчиком материалов, оборудования, или иного имущества Заказчика во время проведения Подрядчиком Работ, оказавшегося во владении Подрядчика в связи с исполнением Договора, в размере стоимости указанных материалов, оборудования, или иного имущества Заказчика. # Мы отвечаем за бетонную смесь, арматуру, опалубку и любые строительные материалы, которые купили на ваши деньги. Если мы испортим материалы, то сами возместим убытки
  • 9.4.3. Подрядчик не несет ответственности за невыполнение обязательств по Договору, если оно вызвано действием или бездействием Заказчика, повлекшим невыполнение им собственных обязательств по Договору перед Подрядчиком. #

10. Основания и порядок расторжения договора

  • 10.1. Договор может быть расторгнут по соглашению Сторон, а также в одностороннем порядке по письменному требованию одной из Сторон по основаниям, предусмотренным Договором и законодательством. #
  • 10.2. Расторжение Договора в одностороннем порядке производится только по письменному требованию Сторон в течение 30 (Тридцати) календарных дней со дня получения Стороной такого требования. #
  • 10.3. Заказчик вправе расторгнуть Договор в одностороннем порядке в любое время до сдачи Заказчику результата Работ, уплатив Подрядчику стоимость фактически выполненных до получения извещения об отказе Заказчика от исполнения Договора Работ. Заказчик также обязан возместить Подрядчику все убытки, причиненные прекращением Договора (приобретенные, но не использованные материалы и т.д.). # Вы в любое время можете отказаться от работы с нами и расторгнуть договор
  • 10.4. Подрядчик вправе расторгнуть Договор в одностороннем порядке в случаях нарушения Заказчиком принятых на себя обязательств по настоящему Договору, увеличения стоимости Работ или необходимости проведения дополнительных работ и отказа Заказчика от заключения дополнительного соглашения об увеличении стоимости Работ, а также задержки Заказчиком оплаты этапа выполненных Работ более чем на 15 банковских дней. #

11. Разрешение споров из договора

  • 11.1. Претензионный порядок досудебного урегулирования споров из Договора является для Сторон обязательным. #
  • 11.2. Претензионные письма направляются Сторонами нарочным либо заказным почтовым отправлением с уведомлением о вручении последнего адресату по местонахождению Сторон, указанным в п. 14 Договора. #
  • 11.3. Направление Сторонами претензионных писем иным способом, чем указано в п. 10.2 Договора не допускается. #
  • 11.4. Срок рассмотрения претензионного письма составляет 14 рабочих дней со дня получения последнего адресатом. #
  • 11.5. Споры из Договора разрешаются в судебном порядке в суде г. Москвы. #

12. Форс-мажор

  • 12.1. Стороны освобождаются от ответственности за полное или частичное неисполнение обязательств по Договору в случае, если неисполнение обязательств явилось следствием действий непреодолимой силы, а именно: пожара, наводнения, землетрясения, забастовки, войны, действий органов государственной власти или других независящих от Сторон обстоятельств. #
  • 12.2. Сторона, которая не может выполнить обязательства по Договору, должна своевременно, но не позднее 10 календарных дней после наступления обстоятельств непреодолимой силы, письменно известить другую Сторону, с предоставлением обосновывающих документов, выданных компетентными органами. #
  • 12.3. Стороны признают, что неплатежеспособность Сторон не является форс-мажорным обстоятельством. # Заранее спланируйте бюджет на строительство. Мы построим фундамент по этапам, если не сможете оплатить работу сразу

13. Прочие условия

  • 13.1. Во всем остальном, что не предусмотрено настоящим Договором, Стороны руководствуются действующим законодательством РФ. #
  • 13.2 Все Приложения к настоящему Договору являются его неотъемлемыми частями. Все изменения и дополнения к настоящему Договору действительны лишь в том случае, если они сделаны в письменной форме и подписаны обеими сторонами. #
  • 13.3. Договор и Приложения к нему, заключенные посредством факсимильной связи, считаются действительными и приравниваются к оригиналу, до момента обмена сторонами оригиналами указанных в настоящем пункте документов. Стороны обязуются обменяться оригиналами в течение 30 дней. #
  • 13.4. Ни одна сторона не имеет права передавать свои права и обязанности по настоящему Договору какой-либо третьей стороне без письменного согласия другой стороны. #
  • 13.5. Стороны обязаны в трехдневный срок извещать друг друга об изменениях своих реквизитов. #
  • 13.6. После подписания настоящего Договора все предшествующие переговоры и переписка по данному Договору теряют силу. #
  • 13.7. Вся информация, полученная в ходе реализации настоящего Договора, считается конфиденциальной и не подлежит разглашению или передаче третьим лицам, как в период действия, так и по окончании настоящего договора. #
  • 13.8. Настоящий Договор составлен в двух экземплярах, на русском языке, имеющих одинаковую юридическую силу, по одному для каждой из сторон. #